※募集終了📍福岡市中央区高砂1丁目 家賃15.4万円(管理費5000円)2LDK / 55.35㎡ 薬院駅まで徒歩8分 #エスペランサ天神南 201

はじめに

薬院・平尾・高宮エリアでお部屋探し中の方へ。
今回募集のお部屋は、薬院駅から徒歩8分築浅のおしゃれな2LDKを紹介します。
駅近ながら落ち着いた住宅街にあり、一人暮らしにおすすめ。
地元密着の私たちだからこそ知る「リアルな住み心地」をお伝えします。

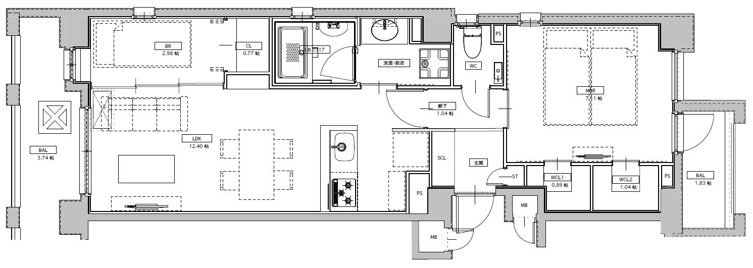
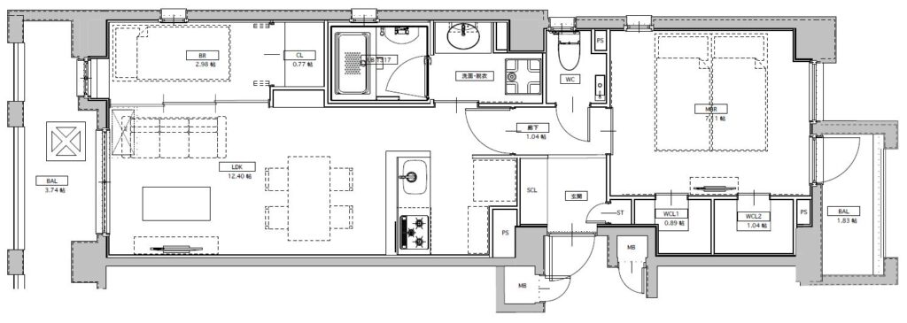
物件概要・基本情報

項目内容
物件名エスペランサ天神南
所在地福岡市中央区高砂1丁目
家賃15.9万円(共益費込み)
敷/礼 0万円 | 30.8万円
間取り2LDK
広さ55.35㎡
最寄駅地下鉄七隈線 薬院駅 徒歩8分
構造鉄筋コンクリート造 10階建て
築年数築5年
建物設備宅配ボックス・ネット無料・オートロック・角部屋

物件の外観・内観・設備・間取りなど


99736939479
previous arrow
next arrow

周辺地図とストリートビュー



物件の特徴と魅力

社長

外観もロビーもおしゃれで、リビングのダウンライトも最高すぎる!

社員

ネット無料で水回りの設備もしっかりしていて、ここを選べば間違いなしですね!


周辺環境・地域情報


この物件はこんな人におすすめ

①おしゃれなマンションに住みたい方
②薬院エリアでお探しの方
③生活環境がいいところに住みたい方

問い合わせ・内見案内・相談・空室確認など、公式LINEでお気軽にお問い合わせください(無料)


まずはお気軽にご相談ください。

お問い合わせや求人応募は下記にお電話をいただくか、お問い合わせフォーム、LINEよりご連絡ください。
ご返信に最大2営業日ほどお日にちをいただきますので、お急ぎの場合はお電話にてお問合せください。


まずはお気軽にご相談ください。

お問い合わせや求人応募は下記にお電話をいただくか、お問い合わせフォーム、LINEよりご連絡ください。ご返信に最大2営業日ほどお日にちをいただきますので、お急ぎの場合はお電話にてお問合せください。