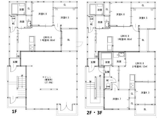
📍福岡市中央区平尾1丁目 家賃14.5万円(管理費3000円)2LDK / 46.12㎡ 薬院駅まで徒歩8分 #アールユー薬院 302 

はじめに

薬院・平尾・高宮エリアでお部屋探し中の方へ。
今回募集のお部屋は、ペット可物件です!
駅近ながら落ち着いた住宅街にあり、おすすめ。
地元密着の私たちだからこそ知る「リアルな住み心地」をお伝えします。

物件概要・基本情報

項目内容
物件名アールユー薬院
所在地福岡市中央区平尾1丁目
家賃14.8万円(共益費込み)
敷/礼 0か月 | 1か月
間取り2LDK
広さ46.12㎡
最寄駅七隈線 薬院駅 徒歩8分
構造木造 3階建て
築年数築1年
建物設備ネット無料・浴室乾燥機

物件の外観・内観・設備・間取りなど


周辺地図とストリートビュー




この物件はこんな人におすすめ

①新築に住みたい方
②ペットと暮らしたい方
③薬院駅周辺でお探しの方

内見希望・プロに相談・費用詳細などは公式LINEより気軽にお問合せください✨


まずはお気軽にご相談ください。

お問い合わせや求人応募は下記にお電話をいただくか、お問い合わせフォーム、LINEよりご連絡ください。
ご返信に最大2営業日ほどお日にちをいただきますので、お急ぎの場合はお電話にてお問合せください。


まずはお気軽にご相談ください。

お問い合わせや求人応募は下記にお電話をいただくか、お問い合わせフォーム、LINEよりご連絡ください。ご返信に最大2営業日ほどお日にちをいただきますので、お急ぎの場合はお電話にてお問合せください。