📍福岡市中央区浄水通 家賃12.5万円(管理費5000円)2LDK / 70.76㎡ 薬院大通駅まで徒歩7分 #浄水ハイツ 302 【管理番号】039

はじめに

薬院・平尾・高宮エリアでお部屋探し中の方へ。
物件について細かい情報をお届け♪
費用詳細など知りたい方は公式LINEよりご相談ください✨
地元密着の私たちだからこそ知る「リアルな住み心地」をお伝えします。

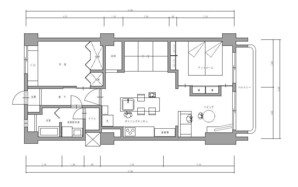
物件概要・基本情報

項目内容
物件名浄水ハイツ
所在地福岡市中央区浄水通
家賃13.0万円(共益費込み)
敷/礼 0か月 | 3か月
間取り2LDK
広さ70.76㎡
最寄駅地下鉄七隈線 薬院大通駅 徒歩7分
構造鉄筋コンクリート造 6階建て
築年数築53年
建物設備都市ガス・分譲賃貸・リノベーション

物件の外観・内観・設備・間取りなど


周辺地図とストリートビュー




この物件はこんな人におすすめ

①家族が多い方
②リノベが好きな方
③落ち着いた環境に身を置きたい方

内見希望・プロに相談・費用詳細などは公式LINEより気軽にお問合せください✨


まずはお気軽にご相談ください。

お問い合わせや求人応募は下記にお電話をいただくか、お問い合わせフォーム、LINEよりご連絡ください。
ご返信に最大2営業日ほどお日にちをいただきますので、お急ぎの場合はお電話にてお問合せください。


まずはお気軽にご相談ください。

お問い合わせや求人応募は下記にお電話をいただくか、お問い合わせフォーム、LINEよりご連絡ください。ご返信に最大2営業日ほどお日にちをいただきますので、お急ぎの場合はお電話にてお問合せください。