※成約済み📍福岡市南区塩原4丁目 家賃7.9万円(管理費5000円)1LDK / 29.25㎡ 大橋駅まで徒歩9分 #グランフォーレ大橋プレミア 702 【管理番号】042

はじめに
薬院・平尾・高宮エリアでお部屋探し中の方へ。
物件について細かい情報をお届け♪
費用詳細など知りたい方は公式LINEよりご相談ください✨
地元密着の私たちだからこそ知る「リアルな住み心地」をお伝えします。
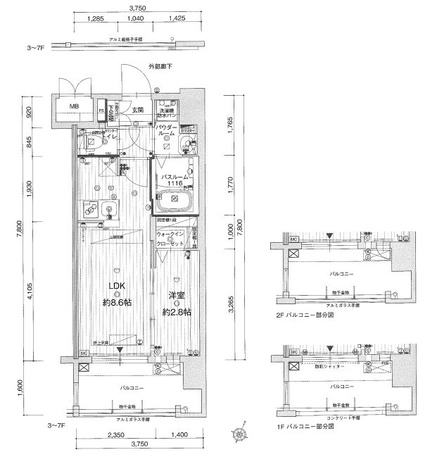
物件概要・基本情報
| 項目 | 内容 |
|---|---|
| 物件名 | グランフォーレ大橋プレミア |
| 所在地 | 福岡市南区塩原4丁目 |
| 家賃 | 8.4万円(共益費込み) |
| 敷/礼 | 0か月 | 1か月 |
| 間取り | 1LDK |
| 広さ | 29.25㎡ |
| 最寄駅 | 西鉄大牟田線 大橋駅 徒歩9分 |
| 構造 | 鉄筋コンクリート造 9階建て |
| 築年数 | 築7年 |
| 建物設備 | オートロック・宅配ボックス・エレベーター2基・浴室乾燥機・防犯カメラ |
物件の外観・内観・設備・間取りなど






































